LEB4 - Terreno - Laguna Escondida
Laguna Escondida



LEB4 - Terreno - Laguna Escondida
Laguna Escondida
Precio: USD
1,000,000.00
- 2869
- LEB4 - Terreno - Laguna Escondida
- 2869
- LEB4 - Terreno - Laguna Escondida
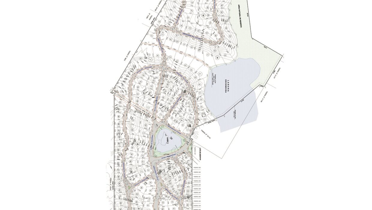
Terreno en venta en Laguna Escondida, José Ignacio.
Este barrio privado combina naturaleza y sofisticación con 227 lotes, dos lagunas y una reserva natural protegida. Amenities de primer nivel como servicio de playa, dos canchas de tenis, seguridad las 24 horas y un kids club aseguran una experiencia residencial incomparable. Una ubicación privilegiada en uno de los destinos más exclusivos de Uruguay.
Galería de Fotos


































































Ubicación
Contacto
Galería Los Caracoles. Sainz Martinez y Los Biguá. José Ignacio, Uruguay
Phone & Whatsapp +598 9470 7314
Visit our Instagram
info@victoriafones.com
